燃气场站激光视频遥测仪
商品详情
性能特点
技术参数
型号:TH-LDGAS
提示
●仪器搬动

采用最 佳位置搬运产品
●未通电时

垂直转动组件 水平转动组件
●通电后

请勿转动组件 请勿转动组件
注意
● 请注意本设备必须遵守使用规则和测试方法。
警告
● 禁止在爆炸性气体环境中拆卸和维修。
● 禁止将仪器置于高温和火源旁烘烤。
● 禁止私自拆卸本设备。
危险
● 请勿在非允许的爆炸性环境中使用本设备。
禁止
● 严禁使用任何工具敲击本产品

1 仪器介绍
扫描式激光甲烷探测仪“TH-LDGAS”是集成气体探测及视频监控为一体的新一代设备,应用国际领先的光电技术,可在一定范围内捕捉空气中的甲烷气体,灵敏度达到50 ppm·m。
该仪器是在后台系统控制下使用。可实现在其工作范围内环境中的甲烷气体探测,在出现甲烷气体泄漏的情况下完成声光报警、视频以及数据的记录。远程数据终端系统为应急、维修提供可靠信息。
2 仪器组成
扫描式激光甲烷探测仪组成:
(a)激光发射、接收模块;
(b)光强分析模块;
(c)指示光组件;
(d)摄像模块;
(e)隔爆云台;
3 探测原理
利用甲烷气体对特定波长的激光具有吸收效应,且吸收强度与甲烷气体浓度相关(Lambert-Beer,朗伯-比尔定律)的原理而设计。
利用隔爆云台的“水平方向360°旋转,垂直方向180°旋转”的功能,可在一定范围内进行监控。
利用摄像模块,可迅速定位泄漏区域。
4 仪器规格、技术指标
4.1仪器规格:
外壳材料:优质304不锈钢
尺寸、重量:
(a)外型尺寸:(长×宽×高)482mm×310mm×406mm。
(b)重量:约36kg。
工作环境条件:
(a)温度:(-40~+70)℃。
(b)相对湿度:≤98%RH。
(c)压力:68kPa~115kPa
(d)其它: 无破坏金属及绝缘材料的腐蚀性气体的区域。
防爆等级:ExdⅡCT6 Gb
激光安全等级:信号光Class Ⅲ 指示光Class ⅢA
4.2技术指标:
表(1):技术指标
检测气体:甲烷CH4 | 响应时间:≤0.1s |
检测距离:0.5~100m | 测量范围:(0~50000)ppm·m |
基本误差:±0.01% | 视频像素:1960p |
摄像机:工业级 4k | 光功率:<10mW |
水平转动:360°连续 | 垂直转动:+90°~-90° |
水平转动速度:0.1°~40°/S平滑变速转动 | 垂直转动速度:0.1°~40°/S平滑变速转动 |
预置位点数:300 | 360度巡航周期:10~3600S |
安装方式:直立安装 | 输入电压:100~240V AC |
最 大电流:≤1A | 功耗:≤100W |
电气连接:3米综合线缆 | 信号传输:RS-485、GPRS等 |
探测仪控制通讯速率:9600bps | 通讯协议:MODBUS-RTU、PELCO-D |
自检功能:具故障报警输出 | 自检报警信号输出:模拟信号≤4mA或≥20mA |
零点漂移补偿:50ppm以内,可自动补偿 | 环境浓度补偿:具备环境浓度补偿功能 |
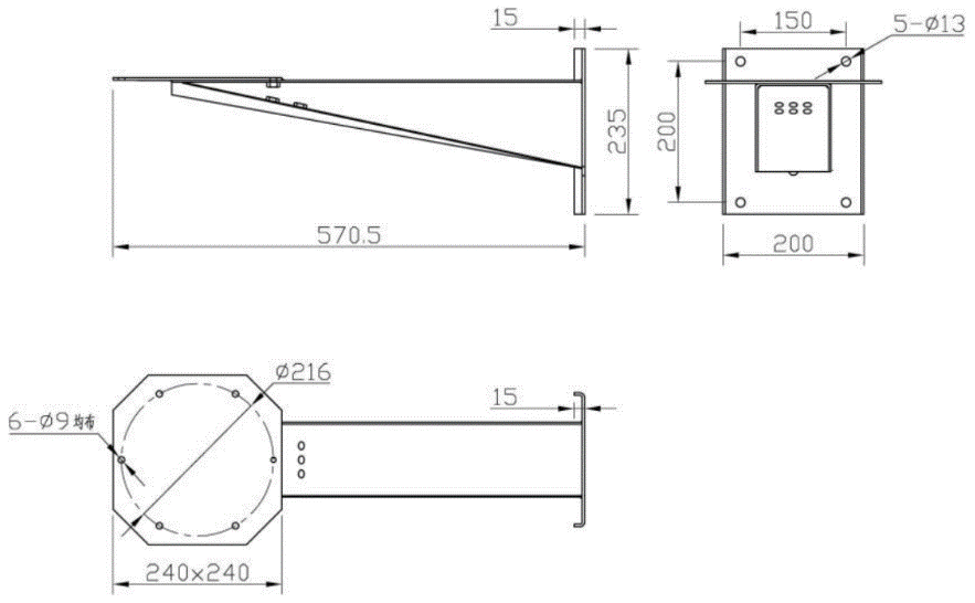
5 仪器安装、接线
5.1 探测仪安装固定
在设定位置安装支架,用螺栓将探测仪固定在支架上。支架与仪器连接件见下图:

云台底盘螺孔位置

支架示意图
5.2 电缆的连接
该产品出厂时带引出线,电缆定义见下表(1)、表(2)。
表(1):综合线缆接线定义
综合电缆 | ||||||
名称 | 云台电源电缆 | UTP5E | RS485 | |||
功能 | 火线 | 零线 | 地线 | 数据传输 | 控制信号 | |
颜色 | 棕 | 灰 | 黄/绿 | 灰 | 红 | 蓝 |
表(2):4芯线缆接线定义
4芯电缆 | ||||
名称 | 备用 | RS485 | ||
功能 | - | - | 控制信号 | |
颜色 | 黄 | 绿 | 白 | 棕 |
5.3 通电自检
通电使用前的准备和检查:检查综合线缆与4芯线缆是否连接正确。
正常自检过程为:水平左转360度→水平右转360度;
俯仰至-90°→至+90°→至水平位。
6 设备配套软件(TH-LDGASV1.0)
软件安装:
6.1软件建议安装在Windows7 64位旗舰版系统下。
6.2将《可燃气体激光探测预警系统》压缩包进行解压,双击Setup.exe应用程序(图1)

图1:双击压缩包内的Setup.exe进入安装
6.3安装I\O驱动程序;安装图库;安装数据库服务程序;安装扩展程序(见图2)。安装后再重启

图2:安装图库、数据库服务程序、扩展程序
6.4打开软件,点击恢复图标(图3),选择需要恢复的文件(图4)恢复到指定的文件夹内。点击运行即可

图3:点击图中“恢复”图标

图4:选择需要恢复的文件(例:演示程序.PCZ)依次正确执行以上操作,软件安装完成,可以投入使用。
软件使用:
6.5 软件界面及操作
启动软件:双击“可燃气体激光探测预警系统”图标(图5)。

图5:“可燃气体激光预警系统”图标
6.6 所有软件安装完成后,运行程序,显示系统主界面(图6)。

图6:“可燃气体激光预警系统”主界面
观察浓度值(图7)显示是否正常。

图7:浓度、光强界面
操作云台方向控制界面(图8),观察云台工作是否正常。

图8:云台控制界面
操作视频控制界面(图9),观察视频镜头工作是否正常。

图9:视频控制界面
操作气体检测参数设置界面(图10),观察相关报警参数设置是否符合要求。

图10:报警参数设置
需要进行设置参数修改,请点击用户登陆(图11),见下图

图11:用户登录界面
*用户登陆后可进行预置位设置、报警值修改、历史数据的调用等操作。针对不同操作人员设置不同的登录权限
6.7 退出系统:鼠标右键单击桌面右下方如图示图标,单击“退出”(图12)。

图12:退出界面
7 使用维护
7.1 一般故障排除
故障现象 | 故障原因 | 排除方法 | |
终端显示 | 气体浓度为-9999 | 电源断开 | 确定是否正常供电 |
网线接触不良 | 检查网线 | ||
光强值异常 | 镜头被遮挡 | 检测清洁镜头 | |
反射面不良 | 修正巡航路线或加装良好反射面 | ||
无图像显示 | 电源断开 | 确定是否正常供电 | |
网线接触不良 | 检查网线 | ||
图像时有时无 | 网线接触不良 | 检查网线 | |
探测仪控制异常 | 网线没有接好 | 检查网线是否连接正确 | |
地址不正确 | 参照说明书重新设定 | ||
协议不正确 | |||
波特率不正确 | |||
探测仪不受控 | 网线接触不良 | 检查网线 | |
7.2 在对探测仪设备进行维护之前,请务必切断电源。
7.3 搬动产品时请用正确的操作方法(见说明书前序)。
8 运输、贮存
8.1 经过包装的产品,在避免雨雪直接淋袭的条件下,可选择各种方式运输,运输中要求防水、防碰撞。
8.2 通风干燥环境下贮存。
9 随机文件及备、附件
使用说明书、出厂检验报告、产品合格证、装箱清单。
